
Blog: Cruiser Brunos Malawi-Projekt -2- Bau des Unterschrankes (4723)
Hallo,
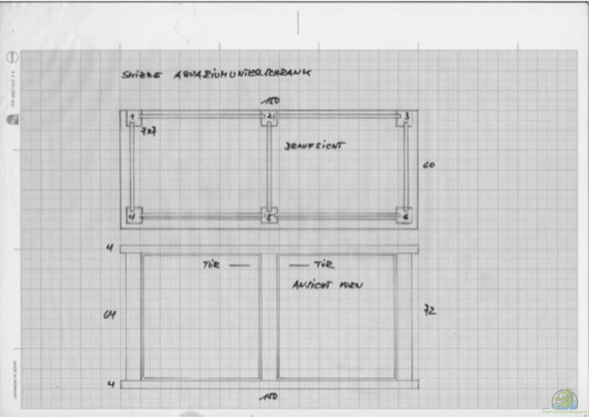
Ihr erinnert Euch vielleicht noch. Anfang des Jahres 2012 stellte ich Euch die Anfänge meines Malawi-Projektes vor. Viel Zeit, viel zu viel Zeit, ist vergangen doch jetzt geht es voran. Hier nun die Bauanleitung für den Unter-schrank meines Aquariums (150x60x60) (siehe Skizze 1):
Da die Türen des Unterschrankes das gleiche Dekor haben sollten wie die Türen der Hängeschränke im Zimmer war ich auf die Ikea-Türenma??e (60 breit und 64 hoch) angewiesen.
Das ergab folgende Ma??e:
3 Kanthölzer a"7 cm + 2 Türen a"60, 1 cm = 141, 2 cm Rest zu 150 cm = 8, 8 cm also 4, 4 cm rechts und links einrücken (siehe Draufsicht Skizze).
Die Nuten in den Kanthölzern sollen eine Tiefe von 15 mm und eine Breite von 20mm haben (siehe Skizze der sechs Kanthölzer). Auf der langen Seite (150) also 4, 4+7+60, 1 (+3cm Nuttiefe rechts/links, Seitenwand also 63 cm breit)+7+60, 1 (63)+7+4, 4. Auf der kurzen Seite (60) also 7+41, 6(+3cm Nuttiefe also 44, 6)+7+4, 4.
Materialliste (siehe Foto 1):
2 Arbeitsplatten wei?? beschichtet 150 x 60 x 4 cm (80 ???)
6 Kanthölzer 7 x 7x 64 cm (9???)
9 Spanplatten wei?? beschichtet (26???)
2 x 64 x 60 x 1, 9 cm
3 x 64 x 41, 6 x 1, 9 cm
4 x 60 x 10 x 1, 9 cm
2 Türen von Ikea 64x60 cm (60???)
ca. 35 Schrauben Sechkantkopf 6x80mm, Spachtelmasse, Lackfarbe wei??, Kleinteile (10???)
Das Fräsen der Nute beim Tischler (60???).
Beim Baumarkt habe ich die Küchenarbeitsplatte und die Spanplatten zurechtschneiden lassen. Beim Tischler in den sechs Kanthölzern nach Ma??vorgabe die Nuten ein fräsen lassen.
Nun geht???s ans ???eingemachte???. Auf der Ober-und Unterplatte den Grundriss genau aufzeichnen. Bohrlöcher anzeichnen und bohren. Schablone für die Bohrlöcher anfertigen und auf die Kopfseiten der Kanthölzer übertragen. Ich verwende Sechskantschrauben 6 x 80mm und damit die Kanthölzer nicht platzen bohre ich vor und versenke die Schrauben mittels Forstner-Bohrer in der Ober-und Unterplatte (Foto 2).
Nun den Unterschrank ???trocken??? zusammensetzen. Ich habe die sechs Stützpfeiler und die Seitenwände zusammen gesteckt. Das ergab schon eine äu??erst stabile Konstruktion und beim Draufstellen kann man mittels aufgezeichneten Grundriss die Passgenauigkeit überprüfen (Foto 3).
Testen ob auch die Türen passen.
Als Führungs-und Positionshilfe habe ich flache Leisten auf die Bodenplatte und Dachplatte genagelt (siehe Foto 4).
Ein Problem stellten noch die Ikea-Türen dar, es sind au??enliegende Türen mit entsprechendem Scharnier. Meine Türen sollen aber zwischen den Kanthölzern sein. Entweder man schraubt innen eine entsprechende Leiste an oder besorgt sich ein anderes Scharnier und muss mit dem Forstner-Bohrer zwei neue Bohrungen an der Tür anbringen.
Wenn ???trocken??? alles passt, auseinander bauen und wieder zusammen-bauen diesmal dann mit wasserfestem Holzleim als Unterstützung (Foto 5 und 6).
Das zusammengebaute Gestell umdrehen und von oben dann die mit den Passleisten versehene Unterplatte anschrauben (Foto 7).
Das Ganze wieder umdrehen und die oberste Platte (angenagelte Führungsleisten als Pass-Hilfe) anschrauben. Topfbohrungen in der Rückwand für die Technik nicht vergessen (Foto 8 und 9).
Nun noch die Scharniere anschrauben, die Türen anbringen und ausrichten (Foto 10).
Jetzt noch Moosgummi in der Grö??e 150x60 oben drauf befestigen und das Aquarium kann aufgesetzt werden.
In der linken Seite des Schrankes kann ein Zwischenboden eingesetzt werden, je nach Bedarf. In die rechte Seite kommt bei mir der Fluval FX5, den ich noch in ein ca. 10cm hohes Styropor-Bett setze (Foto 11, 12).
Der aufmerksame Leser wird bemerkt haben, dass sich die Ausführung des Unterschrankes zu den Skizzen in meinem ersten Blockbeitrag doch etwas geändert haben.
Der Unterschrank hat mich incl. Tischlerarbeit doch rund 140 ??? mehr nämlich ca. 240 Euronen gekostet. Gut, vielleicht bekommt man ihn fertig preiswerter - ob auch stabiler wage ich zu bezweifeln und über Design kann man streiten. Ich habe aber einen Unterschrank der nun meinen Vorstellungen entspricht und exakt auch ins Zimmer passt.
Hoffe ich habe mich nicht zu kompliziert ausgedrückt (kein Fachmann) und Ihr konntet alles nachvollziehen.
Gru?? Bruno
PS als nächstes gibt es dann meine Erfahrungen zum Kauf des Beckens und den Bau einer Aquarienrückwand.












