Aquarium Beispiel 1219 von Joker
Beschreibung des Aquariums
Besonderheiten:
Das Becken läuft seit Mitte Feber 2005 und ist eine Sonderanfertigung mit gewölbter Frontscheibe und mit zwei Bodenbohrungen für den Ablauf und einer für den Filterrücklauf.
Der Unterschrank ist eine Sonderanfertigung vom Tischler.
Dekoration
Bodengrund:
Der Bodengrund besteht aus ca. 60kg feinem, beigen Aquariensand.
Aquarienpflanzen:
Das Becken mag z.Z. für ein Tanganjikaaquarium stark bepflanzt sein, welche Pflanzen sich auf Dauer halten bzw. durchsetzen wird sich noch zeigen.
Pflanzen sehen m.M. nach nicht nur durch ihren grüne Farbekontrast gut aus, sondern bieten auch Versteckmöglichkeiten und tragen zum allgemeinen Wohlbefinden bei.
Arten:
Anubias barteri var. nana und var. barteri (Speerblatt);
Microsorum pteropus (Javafarn);
Crinum thaianum (Wasserlilie);
Vallisneria gigantea (Riesen Vallisnerie);
Cryptocorynen wendtii
und noch als Startpflanzen Hornkraut und Wasserpest
Weitere Einrichtung:
Die restliche Einrichtung bildet die selbstgemachte Rückwand (dünne gespachtelte Styrodurplatte mit ???lebensmittelechtem??? Flex ??? Fliesenkleber ein wenig gestaltet), Kalkbruchgestein vom Steinhandel (ca. 200 kg in gro??en Brocken) und ca. 30-40 Schneckenhäuser
Aquarien-Technik
Beleuchtung:
Auf meinem Becken liegen zwei Leuchtbalken mit je zwei 58W T8 Leuchtstoffröhren die alle einzeln geschaltet werden und nie alle zusammen in Betrieb sind! Weiter dämpfen die Steinaufbauten und Pflanzen das Licht. Das Becken ist hell aber m.M. dem Verhalten der Fische nach nicht zu hell.
Leuchtdauer und Röhren:
1. JBL Solar Nature 9000K von 12:00 bis 22:30 wei??
2. JBL Solar Nature 9000K von 15:00 bis 21:30 wei??
3. JBL Solar Color von 18:00 bis 22:00 rot
4. Arcadia Marine Blue von 22:00 bis 23:30 blau
Filtertechnik:
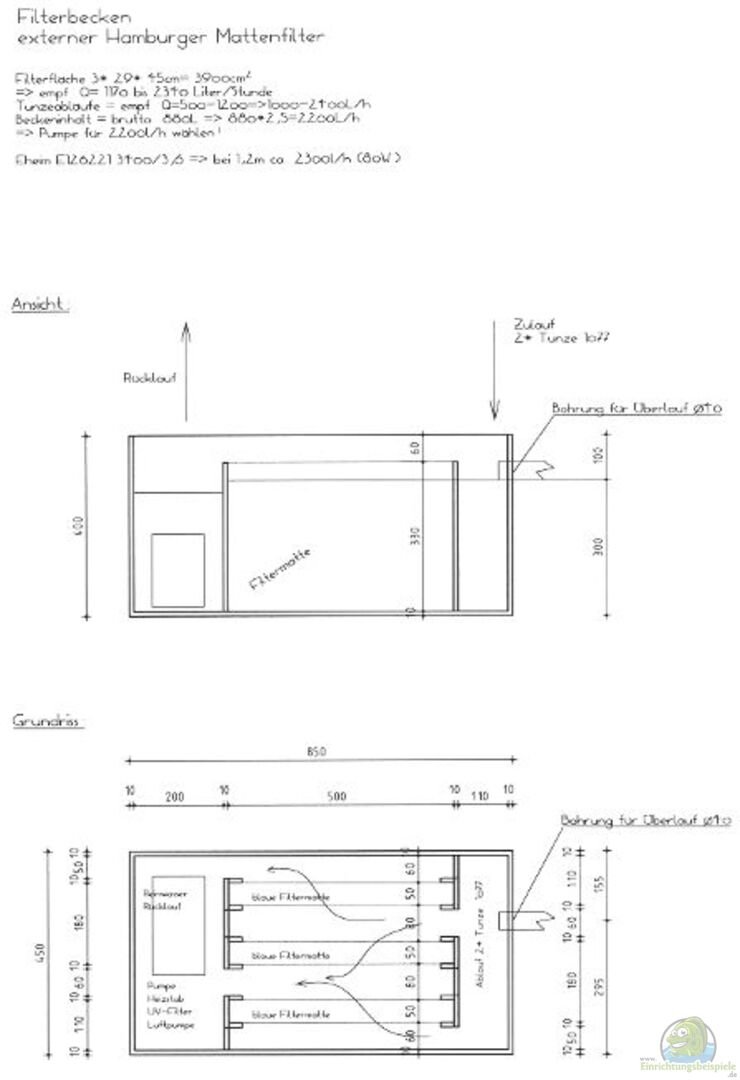
Gefiltert wird über einen externen ???Hamburger Mattenfilter???. Die Bemessung erfolgte nach der bekannten Internetseite von Olaf Deters. Das Filterbecken (80*45*40) steht im Unterschrank und wird von einer Eheim Pumpe (brutto 3400l/h => netto gut 2000l/h) betrieben. Der Zulauf erfolgt über zwei Tunze-Abläufe, der Rücklauf über eine PVC Verrohrung und der Einlauf ins Aquarium erfolgt über dem Wasserspiegel.
Im Filterbecken liegt Hydrogenkarbonat um die KH ??? Härte bzw. den PH ??? Wert stabil hoch zu halten.
Ein UV-C Filter ist über einen eigenen Kreislauf angeschlossen.
??ber das Filterbecken wird auch der automatisierte Wasserwechsel betrieben. Unter dem Becken hinter dem Unterschrank ist ein Wasserzu- und Ablauf angebracht. Der Zulauf ist über einen 4/6 Schlauch und ein zeitgesteuertes Magnetventil mit dem Reinwasserbereich des Filterbeckens verbunden. So werden vier mal täglich ca. 10 Liter Wasser automatisch zugeführt. Die Wassermenge kann einfach über die Zeitschaltuhr gesteuert werden. Das überschüssige Wasser läuft über das Filterbecken (schmutzwasserseitig) ab.
Weitere Technik:
Ein 250 Watt Heizstab im Filterbecken.
Besatz
Neolamprologus multifasciatus (2M/2W und Nachwuchs in der Kolonie + 2M teilweise als Einzelgänger)
Altolamprologus calvus (4 noch sehr kleine Jungtiere)
Julidochromis marlieri (5 Jungtiere in der Gruppe - noch keine Paarbildung)
Neolamprologus longior (leleupi) (4 Jungtiere in der Gruppe - noch keine Paarbildung)
Lamprologus ocellatus gold (4 junge Einzelkämpfer - noch keine Paarbildung)
Spathodus Erythrodon (blue spot) (leider nur 1 Tier - wenn er sich gut einlebt werden Partner gesucht)
Cyprichromis leptosoma ´Utinta´ (26 Jungtiere - färben sich gerade um)
Wasserwerte
GH: 9°
KH: 9°
PH: 8, 2-8, 4
Temp.: 26°
Nitrat: ca. 10
Nitrit: n.N.
Futter
Frostfutter: Artemia und Cyclops
Lebend: Artemia vom Teich
Flocken: Tropical Spirulina; JBL Novo Color
(Algen)
Sonstiges
Mehr Infos zum Becken von der Planung bis zum laufenden Betrieb gibt es auf meiner Homepage.

User-Kommentare
Hi
da haste aba ein echt schönes Becken !!! :-)
Aber diese Sandberge ?!?! des waren doch net die schneckenbarsche oder ?? meien gaben zwar auch unaufhörlich aber nicht solche Berge
lg
Markus
na ja also ich finde es nicht schön den iich finde zugepflantze afrika becken sind nicht der " natürliche " lebensraum . Denn stein aufbauten sin viel dekorativer die zu gepflanzen becken sehen aus wie ein amazonas becken und auserdem wie wäre es mal mit tropheus.
Danke! Freut mich dass es Euch gefällt. Habe nun ein aktuelles Foto hereingestellt.
Hallo Robert,
glückwunsch zu diesem tollen Becken. Habe mal die Entstehung auf Deiner Homepage verfolgt - wirklich toll. Ich wünsche Dir noch sehr viel Freude mit dem Becken.
Gruss Dirk